Facility Site Plan
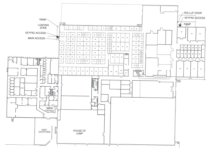
View detailed layouts of our indoor self storage building and outdoor RV parking rows, including gate/keypad access points, ramps, and traffic flow.
Storage Site Plan

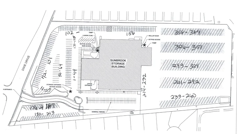
RV Site Plan

View detailed layouts of our indoor self storage building and outdoor RV parking rows, including gate/keypad access points, ramps, and traffic flow.

